Quadrilocale in vendita

Ascea, Via dello Sporgente
€ 129.000
4 locali 4 locali
90 Mq 90 Mq
2 bagni 2 bagni

Quadrilocale in vendita

Ascea, Via dello Sporgente

Descrizione annuncio

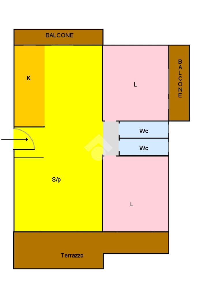
Ascea, al centro del paese e vicino a tutti i servizi, appartamento recentemente ristrutturato composto da: un soggiorno accogliente e luminoso con affaccio sul terrazzo, cucina abitabile, due camere matrimoniali e due bagni. Gli ampi balconi e il terrazzo rappresentano un valore aggiunto, ideali per momenti di relax all'aperto. Completa la proprietà un comodo posto auto, che assicura facilità di parcheggio, e una comoda cantina. Questa soluzione abitativa è perfetta per chi cerca un ambiente ben distribuito e ristrutturato, in una zona tranquilla e ben servita.

Ape non disponibile, la classe energetica non è stata verificata, il certificato verrà consegnato all'atto definitivo.

Mostra tutto

Nelle vicinanze

Trasporto pubblico Trasporto pubblico
Ascea
Ascea
1,4 Km
Scuole Scuole
Scuole
1,8 Km
Farmacia Farmacia
Farmacia
1,6 Km
Farmacia del Corso
1,7 Km
Supermercati Supermercati
Supermercati
2,3 Km
Negozi Negozi
Alimentari Sabia Achille
310 m
Negozi
2,9 Km
Bar Bar
Bar Millenium
530 m
Lido Brigantino
1,4 Km
Ristoranti Ristoranti
Osteria Diabasis
450 m
Bahia Beach Club
1,2 Km
Lido Montagna
1,4 Km
Ristoranti
3,0 Km
Mostra tutto

Caratteristiche

Rif.:
61170978
Piano:
2 di 4 (Piano alto)
Posti auto:
1
Balconi:
2
Terrazzi:
1
Camere da letto:
2
Mostra tutto
Prezzo Prezzo
€ 129.000
Rata mutuo Rata mutuo
€ 612 / mese
Spese annue Spese annue
€ 100
Proponi il tuo prezzoProponi il tuo prezzo

Classe Energetica

G
G
G
G
G
G
G
G
G
EP globale non rinnovabile:
351.00 kW h/m² anno
EP globale rinnovabile:
351.00 kW h/m² anno
EP invernale del fabbricato:
EP estiva del fabbricato:
Anno di costruzione:
1980
Riscaldamento:
Autonomo
Tipo impianto:
Ad aria
Tipo alimentazione:
GPL

Ti interessa visionare l'immobile?

Fissa un appuntamento  Fissa un appuntamento

Richiedi informazioni

Clicca su Leggi per aprire l'informativa
* Questi campi sono obbligatori

Calcola il tuo mutuo

Semplice e senza impegno
Anticipo

( % )
Mutuo

( % )

pochi semplici passi

inserisci i tuoi dati
Questionario completato
Grazie per aver richiesto un appuntamento senza impegno con un nostro Consulente del Credito e Assicurativo.

Hai inserito correttamente tutti i dati necessari e a breve riceverai una e-mail con un link da convalidare per inviare i tuoi dati.
Affiliato
Immobiliare Palinuro Srl
Corso Carlo Pisacane, snc 84051 Centola (SA)

Il nostro staff


  • Menotti Lerro
    Responsabile

  • Maria Palmieri
    Collaboratrice

  • Desirèe Tripari
    Coordinatrice

  • Flavio Fasanaro
    Affiliato
Corso Carlo Pisacane, snc 84051 Centola (SA)
Zona: Palinuro-Centola-Marina di Camerota
Mostra su mappa
Affiliato
Immobiliare Palinuro Srl
Corso Carlo Pisacane, snc 84051 Centola (SA)

2026 Tecnocasa Franchising S.p.A. - P. IVA 08365160152 - Via Monte Bianco 60/A 20089 Rozzano (MI). Ogni agenzia ha un proprio titolare ed è autonoma. Privacy policy | Policy utilizzo | Cookie policy