Quadrilocale in vendita

Ascea, Via Chiusa
€ 115.000
4 locali 4 locali
70 Mq 70 Mq
1 bagno 1 bagno

Quadrilocale in vendita

Ascea, Via Chiusa

Descrizione annuncio

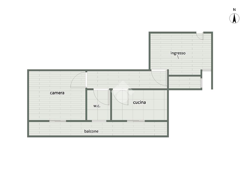
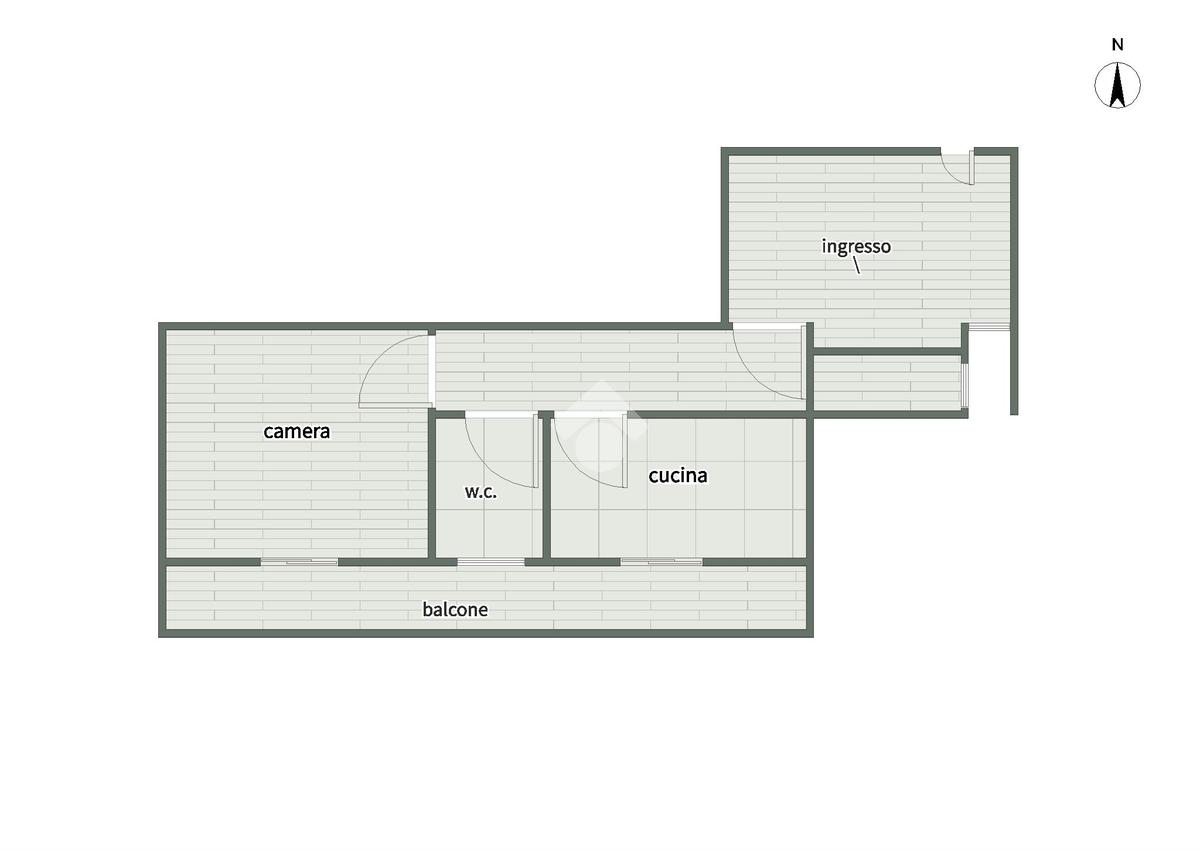
Ascea, piccolo borgo cilentano vicino alla più rinomata Marina, famosa per il suo mare, appartamento abitabile da subito. L'immobile, offre spazi ben distribuiti e funzionali. All'interno, troverete due camere da letto accoglienti, un bagno e un ampio soggiorno con angolo cottura. La presenza di due balconi permette di godere di una piacevole vista e di momenti di tranquillità all'aperto. L'appartamento è dotato di aria condizionata, garantendo comfort in ogni stagione. Un ampio garage e un posto auto riservato offrono comodità e sicurezza per il parcheggio. La posizione strategica dell'immobile consente di raggiungere facilmente i principali servizi della zona, rendendolo una scelta pratica per chi desidera vivere in un contesto ben servito.

Ape non disponibile, la classe energetica non è stata verificata, il certificato verrà consegnato all'atto definitivo.

Mostra tutto

Nelle vicinanze

Trasporto pubblico Trasporto pubblico
Ascea
Ascea
1,3 Km
Scuole Scuole
Scuole
1,7 Km
Farmacia Farmacia
Farmacia
1,4 Km
Farmacia del Corso
1,5 Km
Supermercati Supermercati
Supermercati
2,0 Km
Negozi Negozi
Alimentari Sabia Achille
190 m
Negozi
2,5 Km
Bar Bar
Bar Millenium
160 m
Lido Brigantino
1,7 Km
Ristoranti Ristoranti
Osteria Diabasis
160 m
Bahia Beach Club
1,5 Km
Lido Montagna
1,8 Km
Ristoranti
2,7 Km
Mostra tutto

Caratteristiche

Rif.:
61170991
Piano:
2 di 3 (Piano alto)
Box:
1
Posti auto:
1
Balconi:
2
Camere da letto:
2
Mostra tutto
Prezzo Prezzo
€ 115.000
Rata mutuo Rata mutuo
€ 546 / mese
Spese annue Spese annue
€ 100
Proponi il tuo prezzoProponi il tuo prezzo

Classe Energetica

G
G
G
G
G
G
G
G
G
EP globale non rinnovabile:
351.00 kW h/m² anno
EP globale rinnovabile:
351.00 kW h/m² anno
EP invernale del fabbricato:
EP estiva del fabbricato:
Anno di costruzione:
2000
Riscaldamento:
Autonomo
Tipo impianto:
A radiatori
Tipo alimentazione:
GPL

Ti interessa visionare l'immobile?

Fissa un appuntamento  Fissa un appuntamento

Richiedi informazioni

Clicca su Leggi per aprire l'informativa
* Questi campi sono obbligatori

Calcola il tuo mutuo

Semplice e senza impegno
Anticipo

( % )
Mutuo

( % )

pochi semplici passi

inserisci i tuoi dati
Questionario completato
Grazie per aver richiesto un appuntamento senza impegno con un nostro Consulente del Credito e Assicurativo.

Hai inserito correttamente tutti i dati necessari e a breve riceverai una e-mail con un link da convalidare per inviare i tuoi dati.
Affiliato
Immobiliare Palinuro Srl
Corso Carlo Pisacane, snc 84051 Centola (SA)

Il nostro staff


  • Menotti Lerro
    Responsabile

  • Maria Palmieri
    Collaboratrice

  • Desirèe Tripari
    Coordinatrice

  • Flavio Fasanaro
    Affiliato
Corso Carlo Pisacane, snc 84051 Centola (SA)
Zona: Palinuro-Centola-Marina di Camerota
Mostra su mappa
Affiliato
Immobiliare Palinuro Srl
Corso Carlo Pisacane, snc 84051 Centola (SA)

2026 Tecnocasa Franchising S.p.A. - P. IVA 08365160152 - Via Monte Bianco 60/A 20089 Rozzano (MI). Ogni agenzia ha un proprio titolare ed è autonoma. Privacy policy | Policy utilizzo | Cookie policy