Villa singola in vendita

Pisciotta, Via Terra Bianca - Caprioli
€ 285.000
8 locali 8 locali
200 Mq 200 Mq
3 bagni 3 bagni

Villa singola in vendita

Pisciotta, Via Terra Bianca - Caprioli

Descrizione annuncio

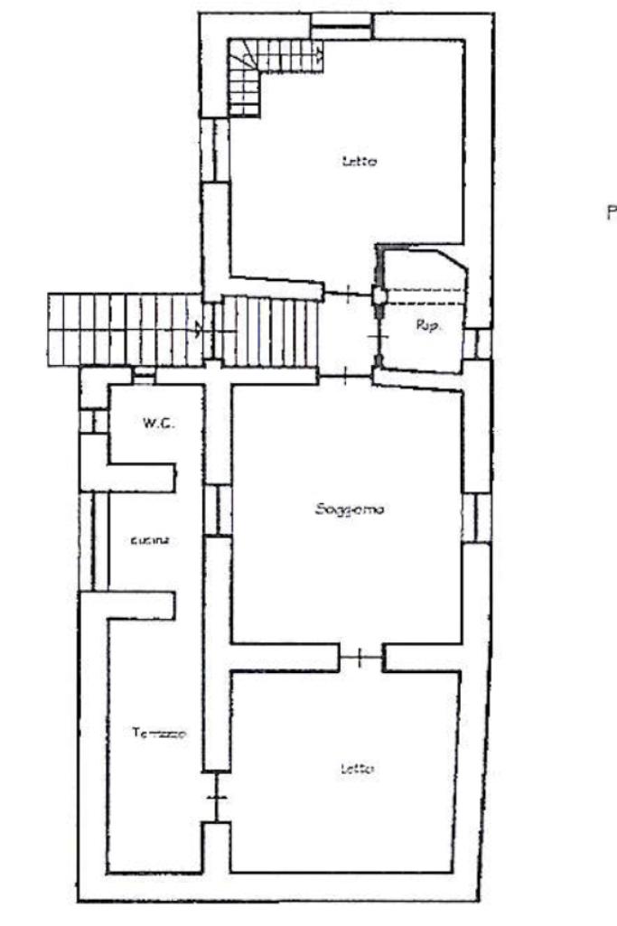
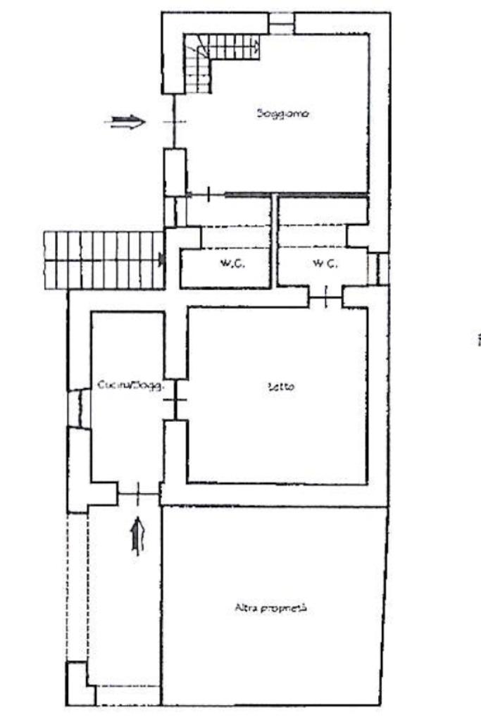
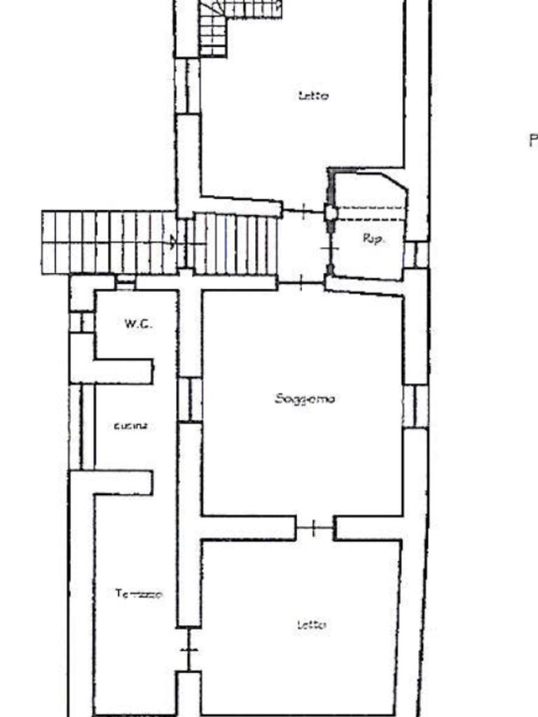
Nel cuore della località di Caprioli, nel comune di Pisciotta, si trova una villa singola che offre una combinazione di comfort e bellezza naturale. Con una superficie di 200 mq, questa proprietà è suddivisa in tre appartamenti distinti, ideale per chi cerca spazio e versatilità. La villa, costruita nel 1960 e ristrutturata nel 2000, presenta una solida muratura in pietra che conferisce carattere e durabilità. Gli interni sono luminosi e ben distribuiti su più livelli, comprendendo 8 locali, 6 camere da letto e 3 bagni. Gli spazi esterni includono un ampio giardino, perfetto per momenti di relax all'aperto, e un terrazzo panoramico con vista su Palinuro. Completano la proprietà due balconi, un box auto e tre posti auto. L'aria condizionata garantisce comfort in ogni stagione. Una soluzione abitativa che unisce ampie metrature e una posizione privilegiata.

Ape non disponibile, la clase energetica non è stata verificata, il certificato verrà consegnato all'atto definitivo.

Mostra tutto

Nelle vicinanze

Trasporto pubblico Trasporto pubblico
Caprioli Fornace
Caprioli Fornace
610 m
Supermercati Supermercati
SIDIS
1,0 Km
Super CRAI
1,2 Km
Mostra tutto

Caratteristiche

Rif.:
61177560
Piano:
2 di 2 (Piano su più livelli)
Box:
1
Posti auto:
3
Balconi:
2
Terrazzi:
1
Mostra tutto
Prezzo Prezzo
€ 285.000
Rata mutuo Rata mutuo
€ 1.353 / mese
Spese annue Spese annue
€ 100
Proponi il tuo prezzoProponi il tuo prezzo

Classe Energetica

G
G
G
G
G
G
G
G
G
EP globale non rinnovabile:
3051.00 kW h/m² anno
EP globale rinnovabile:
3051.00 kW h/m² anno
EP invernale del fabbricato:
EP estiva del fabbricato:
Anno di costruzione:
1960
Riscaldamento:
Autonomo
Tipo impianto:
A stufa
Tipo alimentazione:
Altro

Ti interessa visionare l'immobile?

Fissa un appuntamento  Fissa un appuntamento

Richiedi informazioni

Clicca su Leggi per aprire l'informativa
* Questi campi sono obbligatori

Calcola il tuo mutuo

Semplice e senza impegno
Anticipo

( % )
Mutuo

( % )

pochi semplici passi

inserisci i tuoi dati
Questionario completato
Grazie per aver richiesto un appuntamento senza impegno con un nostro Consulente del Credito e Assicurativo.

Hai inserito correttamente tutti i dati necessari e a breve riceverai una e-mail con un link da convalidare per inviare i tuoi dati.
Affiliato
Immobiliare Palinuro Srl
Corso Carlo Pisacane, snc 84051 Centola (SA)

Il nostro staff


  • Menotti Lerro
    Responsabile

  • Maria Palmieri
    Collaboratrice

  • Desirèe Tripari
    Coordinatrice

  • Flavio Fasanaro
    Affiliato
Corso Carlo Pisacane, snc 84051 Centola (SA)
Zona: Palinuro-Centola-Marina di Camerota
Mostra su mappa
Affiliato
Immobiliare Palinuro Srl
Corso Carlo Pisacane, snc 84051 Centola (SA)

2026 Tecnocasa Franchising S.p.A. - P. IVA 08365160152 - Via Monte Bianco 60/A 20089 Rozzano (MI). Ogni agenzia ha un proprio titolare ed è autonoma. Privacy policy | Policy utilizzo | Cookie policy